
Klinika za ženske bolesti i porode – operacijski blok

KBC Zagreb, kirurgija
Za potrebe održavanja potrebne mikroklime i klase čistoće pojedinih prostora projektirani su sustavi ventilacije, hlađenja, grijanja vodoopskrbe i odvodnje. Demontirat će se sve instalacije grijanja/hlađenja vodoopskrbe i odvodnje te se izraditi nove.
VENTILACIJA
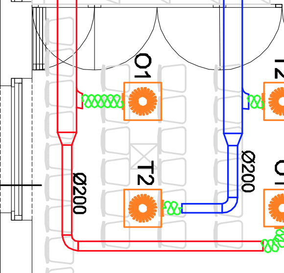
Sustav ventilacije je projektiran s klima komorom predviđenom na krovu objekta s pred filtracijom G4, rekuperacijom, grijanjem i hlađenjem i filtracijom 2. stupnja u klasi F7.
Pripremljen zrak se dovodi do prostora i grana na 3 zone:
Prva zona izmjenjuje zrak u čistim prostorima tj. u prostoru za obradu mlijeka i pomoćnim prostorima u kojima se nalaze dovodne vrtložne rešetke s HEPA filtrima klase H13. Navedena grana je regulirana regulatorima konstantnog protoka s kojima se održava zadani pred tlak u prostorijama, dok se s pred tlačnim rešetkama ugrađenima u vratima osigurava smjer strujanja zraka kao i gradijent tlaka. Prostor za obradu mlijeka je na 10 Pa višem pred tlaku nego pomoćni (ulaz – izlaz) koji je za 5 Pa na višem tlaku od prostora administracije i spremišta u koje prestrujava. Na ulazu u čiste prostore je projektirana preklopka kojom se uključuje ventilacija čiste zone.
Temperatura u prostorima se održava podešavanjem temperature dovodnog zraka komore.
Druga zona izmjenjuje zrak u ostalim radnim prostorima banke mlijeka. Zona je regulirana količinom izmijenjenog zraka u radno i van radnog vremena. Izvan radnog vremena izmjenjuje se minimalna količina zraka koja je 20%nominalne
Treća zona obuhvaća prostore centra za podršku dojenju i savjetovanje. Na ulazu u zonu, pored vrata je projektiran regulator kojim se ventilacija zone postavlja u radno ili izvan radno vrijeme. Izvan radnog vremena količina izmijenjenog zraka se održava na 20% nominalne.
Regulacija temperature dovodnog zraka se regulira regulacijskim ventilima na grijaču i hladnjaku u ovisnosti o temperaturi u prostoru OBRADA MLIJEKA za radno vrijeme prostora i klizanjem između zimskih 28 i ljetnih 20°C izvan radnog vremena prostora obrade mlijeka.
U servisnu sekciju komore će se ugraditi pumpa i regulacijski ventil.
GRIJANJE
Sustav grijanja je projektiran radijatorskim grijanjem spajanjem u postojeću toplinsku stanicu u susjednom objektu.
Projektiran je sustav koji se spaja na postojeći priključak, ugrađuje se nova cirkulacijska pumpa i regulacijski ventili te se razvodi novi razvod za dvorišnu zgradu laboratorija. Dio zgrade koji se ne adaptira će se spojiti na novi horizontalni razvod pri stropu. Na novi razvod grijanja će se spojiti i grijač klima komore.
Regulacija temperature po prostorima će se ostvariti na adaptiranom dijelu termostatskim ventilima ugrađenim na radijatorima, dok će se na postojećem razvodu regulirati snižavanjem temperature polazne vode u toplinskoj stanici prema temperaturi okoline što se definira putem elemenata regulacije i upravljanja u razvodnom ormaru sa zaslonom.
HLAĐENJE
Za potrebe hlađenja adaptiranog dijela projektiran je sustav sa cassetnim ventilokonvektorima spojenim na novo projektiranu dizalicu topline. Dizalica topline je projektirana na krovu zgrade odakle će se spojiti s hladnjakom komore i prodorom kroz krov na cassete. Sve cassete su projektirane s balansirajućim i regulacijskim ventilima.
U svaku prostoriju će se postaviti regulator za programabilno održavanje zadane temperature.
U smislu zaštite od smrzavanja rashladne tekućine sustav hlađenja će se napuniti protusmrzavajućom mješavinom vode i etilen glikola za rad do -15°C.
VODOOPSKRBA
Vodoopskrba adaptiranog dijela je projektirana spajanjem na glavni vodovodni priključak koji se nalazi u podrumskom hodniku ispod stubišta. Navedeni priključak je u oknu odakle se grana na istočni i zapadni dio. Priključak je u vizualno lošem stanju s olovnim razvodom.
Vodovodno okno će se rekonstruirati tako da će se izvesti nova grana za adaptirani dio i zadržati postojeći spoj na granu za dio koji se ne adaptira.
Iz vodovodnog okna će se nova grana izraditi u podu do zapadnog zida hodnika te u zidu do stropa, gdje će se ugraditi glavni ventil hladne vode. Nakon ventila će se izraditi prodor kroz ploču te će se instalacija u podu razvesti do potrošača.
Topla voda i cirkulacija će se izvesti spajanjem na noviji razvod u glavnoj zgradi koja je podrumskim hodnikom povezana s predmetnim prostorima. Prethodno je potrebno demontirati postojeći dotrajali razvod te po istoj trasi ugraditi novi razvod tople vode i cirkulacijskog voda.
Spoj na postojeći razvod će se izraditi ugradnjom zapornih ventila te po podrumskom hodniku do glavnog zapornog ventila hladne vode. Pored ventila hladne vode će se ugraditi i servisni ventili za toplu vodu i cirkulaciju. Navedenim će se na jednom mjestu postaviti ventili za centralno zatvaranje tople, hladne i cirkulirajuće vode za predmetne prostore. Kompletan razvod će se izraditi iz PPR cijevi izoliran toplinskom izolacijom. Razvod kroz podrumski hodnik će se izraditi nadžbukno s toplinskom izolacijom do servisnih ventila te u podu s toplinskom izolacijom otpornom na građevinski materijal do potrošača.
Zahtjevom investitora za potrebe umivaonika u prostorima ulaza / izlaza osoblja i materijala te za potrebe sudopera u praonici i opreme u prostoru obrade mlijeka potrebno je ugraditi uređaj za UV dezinfekciju vode.
Navedeni uređaj će se ugraditi ispod svakog umivaonika i jedan za potrebe sudopera praonice i opreme u obradi mlijeka.
ISPITIVANJE INSTALACIJE NA NEPROPUSNOST
Ispitivanje nepropusnosti vodovodne instalacije provodi se nakon njezinog postavljanja i tada se ona prvi put puni vodom. Pri tome nijedan njezin dio ne bi trebao biti pokriven (ožbukan ili sl.). Cijela bi instalacija trebala biti odzračena, a na priključak valja postaviti manometar s najmanjom točnošću očitavanja 0,1 bar.
U skladu s odgovarajućim propisima, o ispitivanju i o tlačnoj probi treba voditi zapisnik.
Unutarnji vodovodi se ispituju na tlaku od 1,5 x puta pogonski (minimalno na 10 bara).
Nakon punjenja vodom sustav treba 12 sati držati na pogonskom tlaku (6 bar). Nakon toga tlak treba podići na ispitnu vrijednost od 10 bara. Sat vremena nakon dostizanja ispitnog tlaka, pad tlaka ne smije biti veći od 0,2 bar. Ako je pad veći od toga, tada sustav nije prošao tlačnu probu.
ISPIRANJE INSTALACIJE
Ispiranje instalacije valja izvesti nakon provedenog ispitivanja čime se uklanjaju sva onečišćenja koja su u nju mogla dospjeti tijekom izvođenja radova i ispitivanja, a koja bi kasnije mogla utjecati na pogonsku sigurnost (stvaranja naslaga, začepljenje) i higijensku ispravnost vode. Cjevovod treba dobro isprati sanitarnom vodom, a zatim dezinficirati otopinom klora 30 mg/l u vremenu od 8h. Nakon toga dobro isprati sav cjevovod dok količina klora ne bude manja od 0,1 mg/l.
Prije predaje korisniku na upotrebu, treba izvršiti ispiranje i dezinfekciju instalacije te napraviti bakteriološku analizu vode i ishoditi pozitivan atest o kvaliteti vode i pitkosti od Zavoda za zaštitu zdravlja.
ODVODNJA
Postojeća instalacija odvodnje predmetnih prostora je izvedena spojem na kontrolno okno u prostoru administracije koje odvodi i otpadne vode dijela zgrade koji se ne adaptira. Navedeno okno je adaptacijom prostora pozicionirano ispod zida garderobe te se ovim projektom izmiče u hodnik. S obzirom na izmicanje postojećeg okna potrebno je postojeću cijev odvodnje ostalih prostora produžiti / prilagoditi novoj poziciji okna. Iz navedenog okna zbog dotrajalosti i čestih intervencija promijenit će se spojni cjevovod do uličnog okna.
Sanitarne otpadne vode će se odvesti na postojeći sustav javne odvodnje.
Horizontalna instalacija odvodnje iz će se izvesti u podu. Navedena unutarnja instalacija će se izvesti iz PVC cijevi.
Spajanje cijevi i fazonskih komada vrši se pomoću naglavka s gumenim prstenom tako da se cijev utisne u naglavak da do kraja naglavka ostane cca. 5-10 mm slobodnog prostora. Ovaj prostor služi da prihvati dilatacije koje mogu nastati u cjevovodu zbog koeficijenta istezanja (0,08 mm/m°C).
Priključni vodovi sanitarnih uređaja do vertikala izvode se PVC cijevima i to u sljedećim profilima
WC Ø 110 mm i = 1,5%
umivaonik Ø 40 mm i = 3,0%
sudoper Ø 50 mm i = 2,0 %
Kod priključka više sanitarnih predmeta na jedan vod isti izvesti u profilu naznačenom u crtežima.
Za svu instalaciju potrebno je izvršiti probu na propusnost i protočnost i to u dva navrata:
nakon izvedbe temeljnih vodova, prije zatvaranja istih,
nakon montaže sanitarnih uređaja, na ispravnost i nepropusnost spojeva montiranih sanitarnih uređaja.
Otpadne vode potrošača unutar objekta će biti skupljene u novo okno te odvedene u javni cjevovod odvodnje kroz postojeće kontrolno okno sa zapadne strane objekta. Cijela instalacija odvodnje će biti izvedena cijevima od tvrdog PVC-a sa spojevima na kolčak koji će se brtviti gumenim brtvama. Svi ugrađeni materijali će imati atest proizvođača.
Pri izvedbi sabirne odvodnje mora se voditi računa o dopuštenim padovima njezina polaganja. Potrebno je predvidjeti i izvoditi za pojedine poprečne presjeke interne odvodnje niže navedene normalne padove zbog njezina samo ispiranja te izbjegavanja oštećenja interne odvodnje kod većih padova. Minimalni pad smije se primijeniti samo u slučaju kad za to postoje tehnički stručno opravdana obrazloženja
PROMJER CIJEVI ∅ (mm)NORMALNI PADMINIMALNI PADMAKSIMALNI PAD503,5%2,5%15,0%752,5%1,5%15,0%1102,0%1,2%15,0%1251,5%1,0%15,0%
Svi sanitarni uređaji će biti spojeni preko vodnih zatvarača – sifona koji će spriječiti širenje neugodnih mirisa.
Cijevi za izvedbu interne kanalizacije, te materijali koji su korišteni za njihovu izradu uz pripadajući materijal za kanalizacijske radove, moraju zadovoljavati postojeće hrvatske norme (HRN), odnosno odredbe prema DIN i ISO normama ako je riječ o materijalima za koje ne postoje hrvatske norme.
Plastične PVC i PP cijevi i pripadajući fazonski komadi, kontrolna okna, te ostali uređaji i objekti interne kanalizacije izrađeni od PVC materijala moraju zadovoljavati propisane norme. PVC i PP cijevi oznake čvrstoće SN-4 i više služe za izvedbu cjelokupne temeljne (u posebnoj izvedbi i kao zavješene) i vanjske interne kanalizacije (dvorišne) kao i za kanalske priključke. Spajaju se na klasičan način s naglavkom, a samo brtvljenje postiže se gumenim prstenom. PP cijevi koriste se posebno kod potrebe odvodnje voda s povišenom temperaturom (temperature više od 40°C), pa najčešće služe pri spajanju sanitarnih predmeta s kanalskim vertikalama ili temeljnim vodom. Cijevi oznake čvrstoće SN-2 mogu služiti isključivo za izvođenje instalacija odvodnje unutar objekta
SANITARNI UREĐAJI I PRIBOR
Svi sanitarni uređaji će biti po izboru investitora odnosno projektanta arhitekture. Nakon priključenja na instalacije vodoopskrbe i odvodnje bit će ispitana ispravnost rada svih uređaja. Nabavu i dopremu odnosno izbor sanitarnih predmeta će izvršiti arhitekt/investitor, a montirat će ih izvođač vodoopskrbe i odvodnje prema ovom projektu. Prije početka montaže potrebno je da nadzorni inženjer pregleda sve nabavljene predmete, te ih nakon suglasnosti, izvođač može ugraditi.
Radi nemogućnosti montaže standardne WC školjke u suterenu, projektirana je školjka s pumpom za podizanje vode na koju će se spojiti i susjedni umivaonik.


